Potentie!
Omschrijving
Geheel (beleggingspand) monumentaal pand in hartje Zutphen!
3 – 3 A – 3 B – 3 C
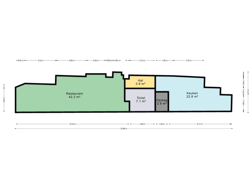
Bruto oppervlakte restaurant 132 m2
Bruto oppervlakte wonen 153 m2
Karakteristiek rijksmonument met een fraaie gevel, gelegen midden in het centrum van Zutphen.
De bereikbaarheid van de Turfstraat 3 is uitstekend. Zowel de auto als het openbaar vervoer. Zutphen trekt een divers
publiek aan, van toeristen die genieten van de middeleeuwse charme van de stad, tot lokale bewoners die
op zoek zijn naar nieuwe en spannende eet- en drinkgelegenheden
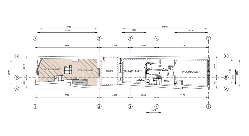
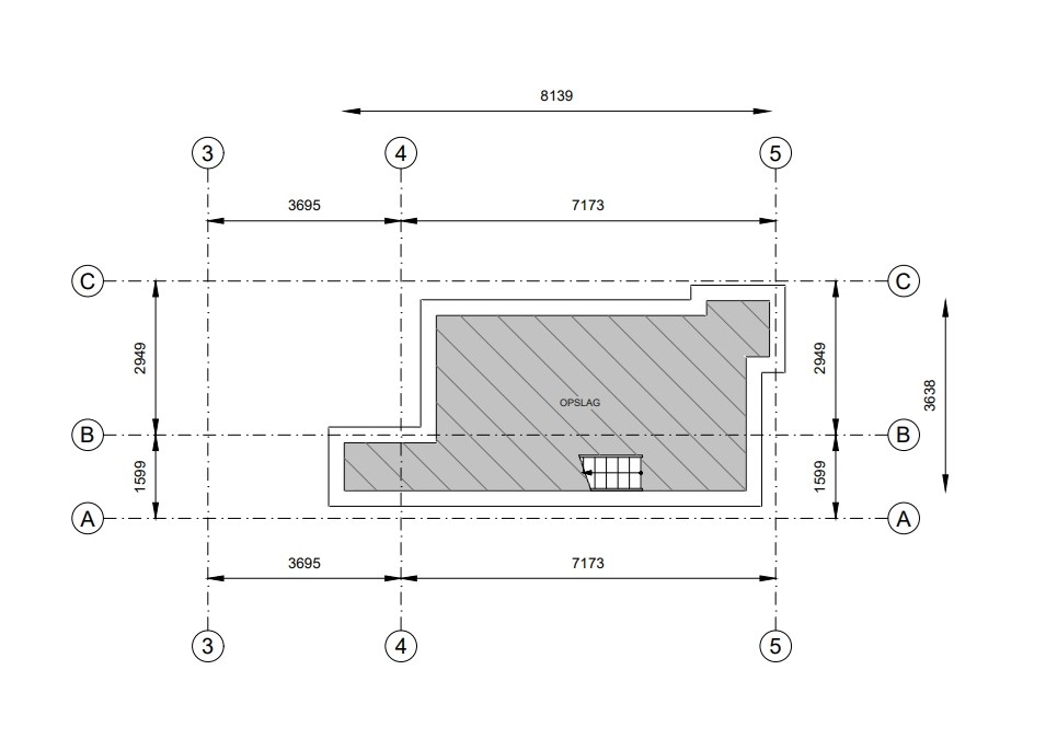
Het pand kan deels leeg en vrij van huur en andere gebruiksrechten worden opgeleverd. INDELING (zie plattegronden)
BIJZONDERHEDEN
– Rijksmonument;
– Ouderdomsclausule van toepassing;
– Gelegen op eigen grond;
– Oplevering in overleg.
EIGENDOM
Het pand is gelegen op eigen grond.
DISCLAIMER
Deze informatie is door Van de Weerd Horecamakelaardij B.V. met de nodige zorgvuldigheid samengesteld. Onzerzijds wordt echter geen enkele aansprakelijkheid aanvaard voor enige onvolledigheid, onjuistheid of anderszins, dan wel de gevolgen daarvan. Alle opgegeven maten en oppervlakten zijn indicatief.









