Nu in de verkoop bij inschrijving: Hotel Barouche in Gouda
Omschrijving
Met de eindstreep in zicht, is de metamorfose tijdelijk stil komen te liggen. Wat een uniek instapmoment betekent voor een slimme ondernemer. Het concept: elegantie, charme en historie verweven met modern comfort. Dat is Hotel Barouche in een notendop.
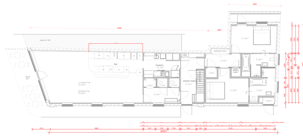
Gevestigd in het monumentale koetshuis aan de Lange Tiendeweg 90, gebouwd in 1889, verrijst hier een boetiekhotel met 13 luxueuze kamers en een sfeervolle wijnbar op de begane grond. De verbouwingen zijn circa 80% af. Met nog een paar stappen te gaan open je de deuren voor heel Gouda en omstreken!
Zowel het vastgoed als de exploitatie wordt te koop aangeboden inclusief aanwezige inrichting, concept, en restaurant-/wijnbar. Of gasten nu kiezen voor een hotelovernachting, een sfeervolle avond in de wijnbar of een combinatie van beide, Barouche biedt een ondernemer de veelzijdigheid om dit te realiseren.
Alles is klaar om verder te groeien: met de rijke geschiedenis van het gebouw, een uniek verhaal, en een concept dat inspeelt op reizigers en stedelijke gasten, aangetrokken door de locatie: hartje Gouda, monumentale ambiance en uitstekende bereikbaarheid.
Ben jij de ondernemer die de verbouwing tot een goed eind brengt, de exploitatiekans omarmt, verder laat bloeien én eigenzinnigheid durft te mixen met hospitality?
Wacht niet langer, de inschrijving sluit vrijdag 16 januari 2026 17:00 uur.
Spring op de bok en neem contact op met makelaar Jorran Erftemeijer op 06 1277 1353 voor meer informatie en het plannen van een bezichtiging.
































